Sted: Brejning Strand, Vejle Kommune
Bygherre: Privat Bygherre
Areal: ca. 390 m²
Færdiggørelse: [2024]
Rådgivende ingeniør: [Connect Consult]
Arkitekt: [Arkitektfirmaet Bøgelund]
Entrepriseform: [fagentreprise]
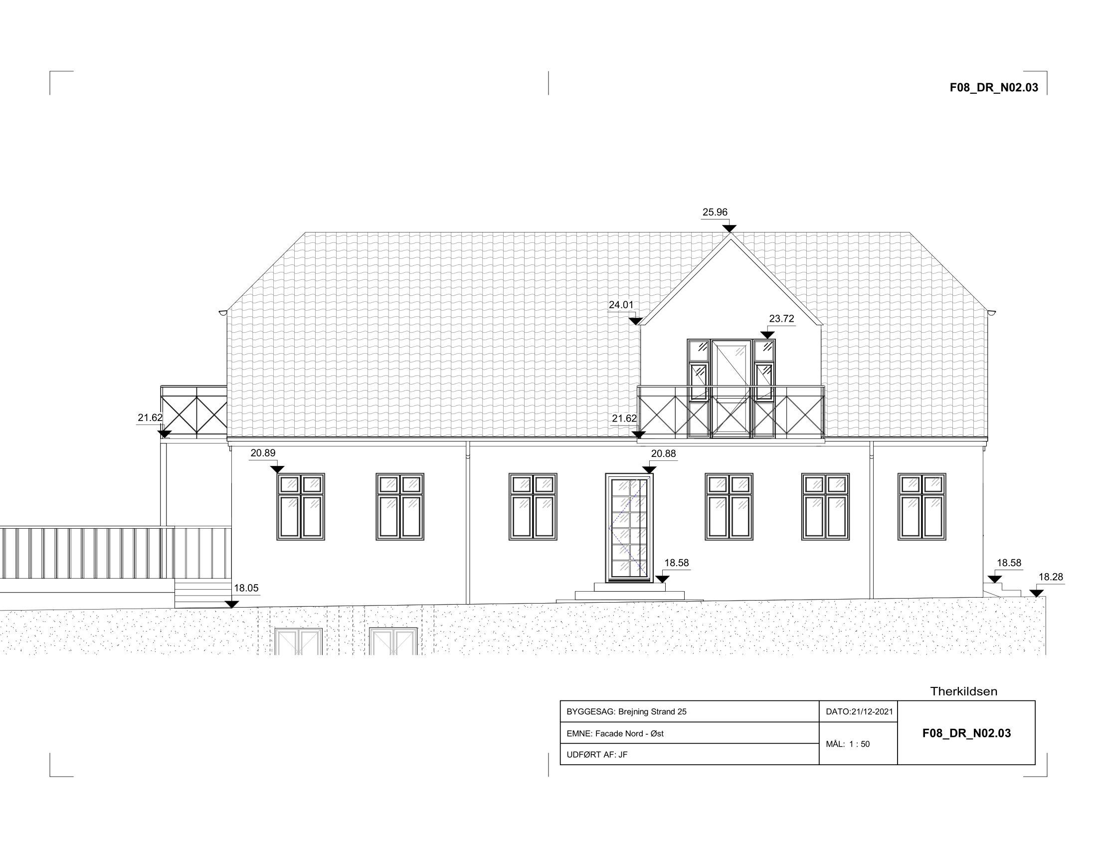
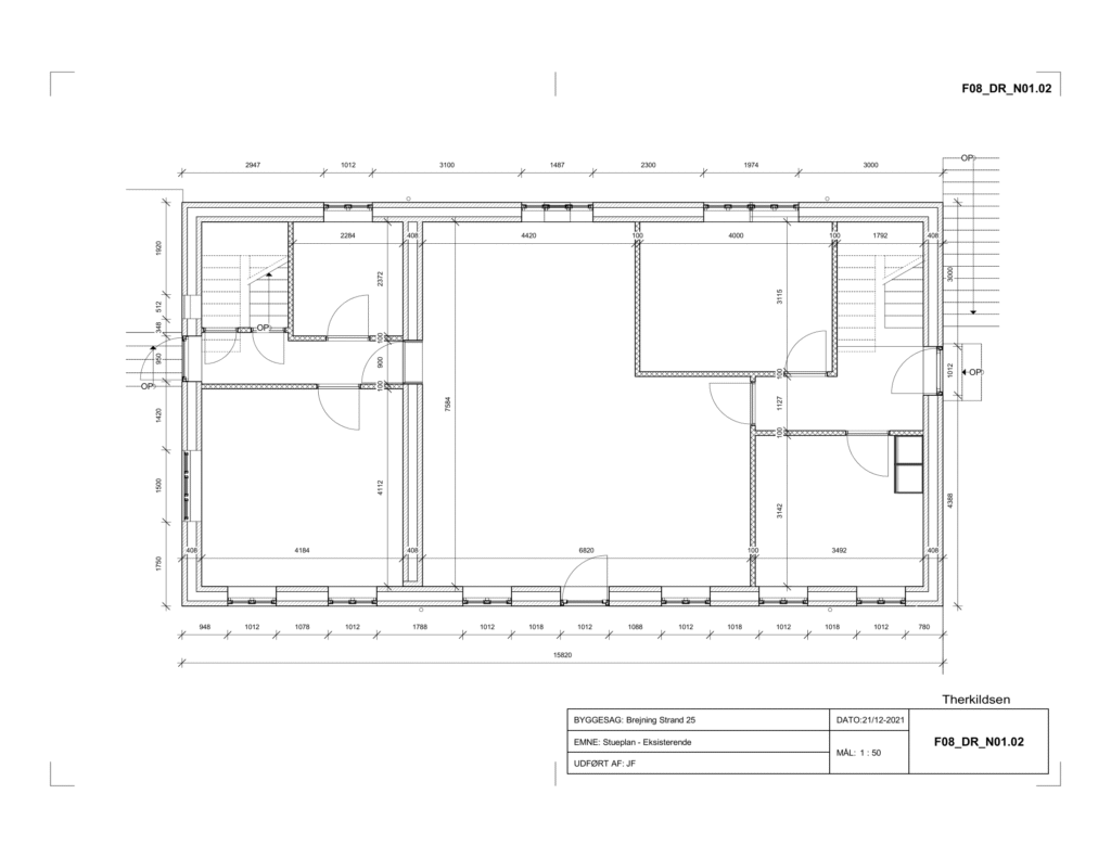
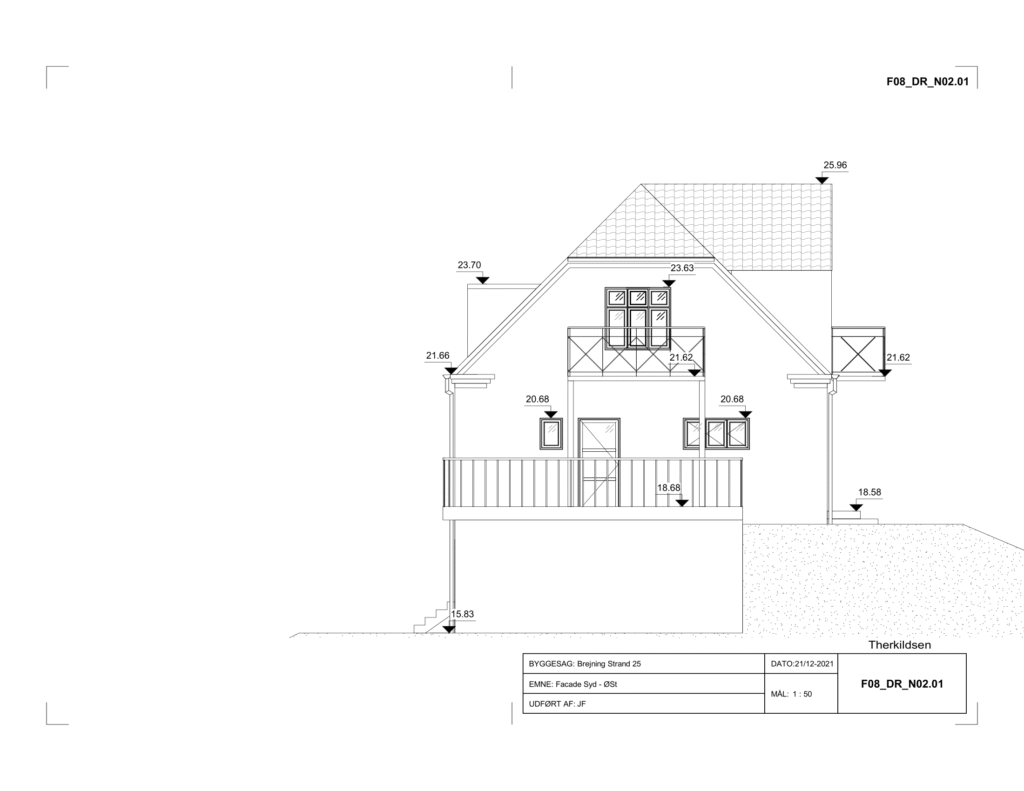
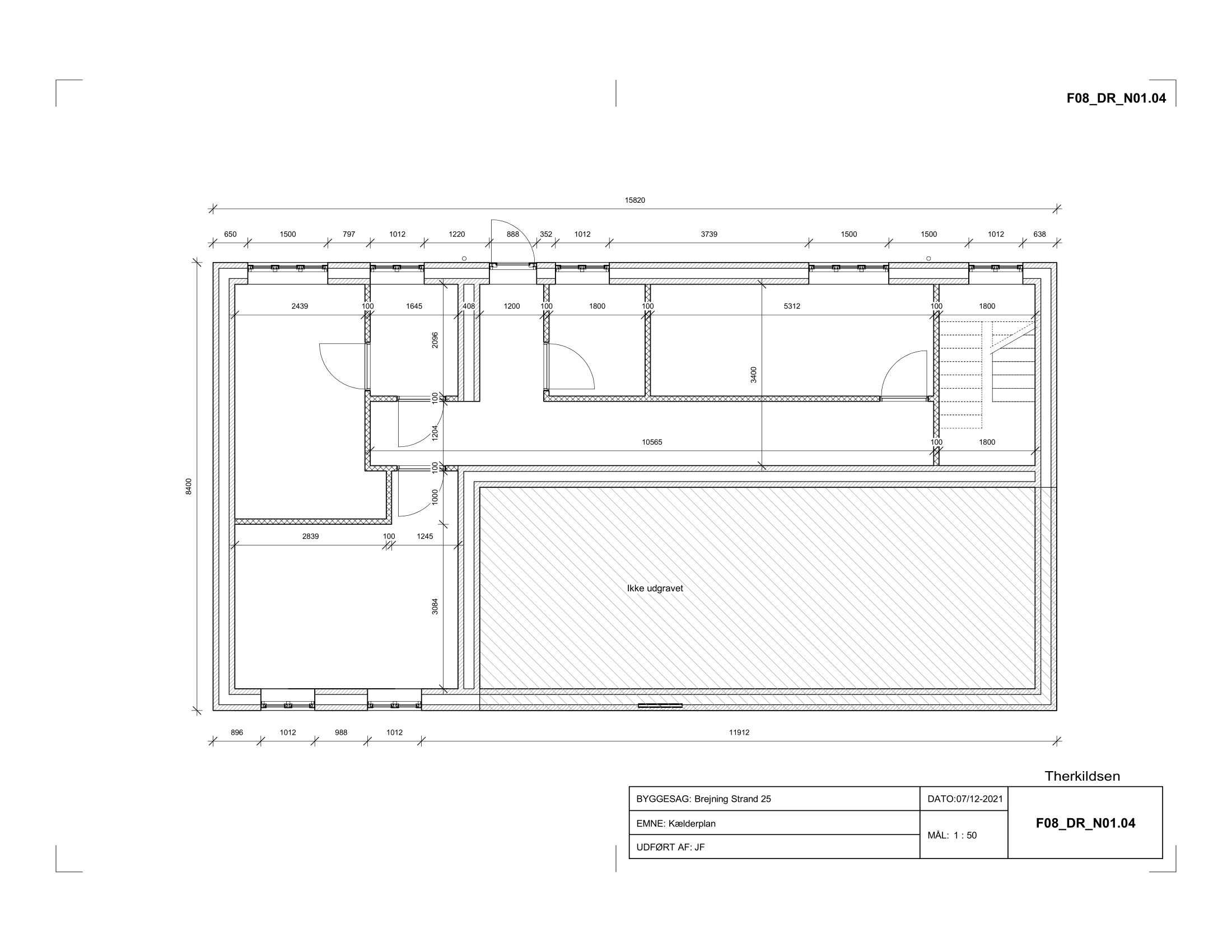
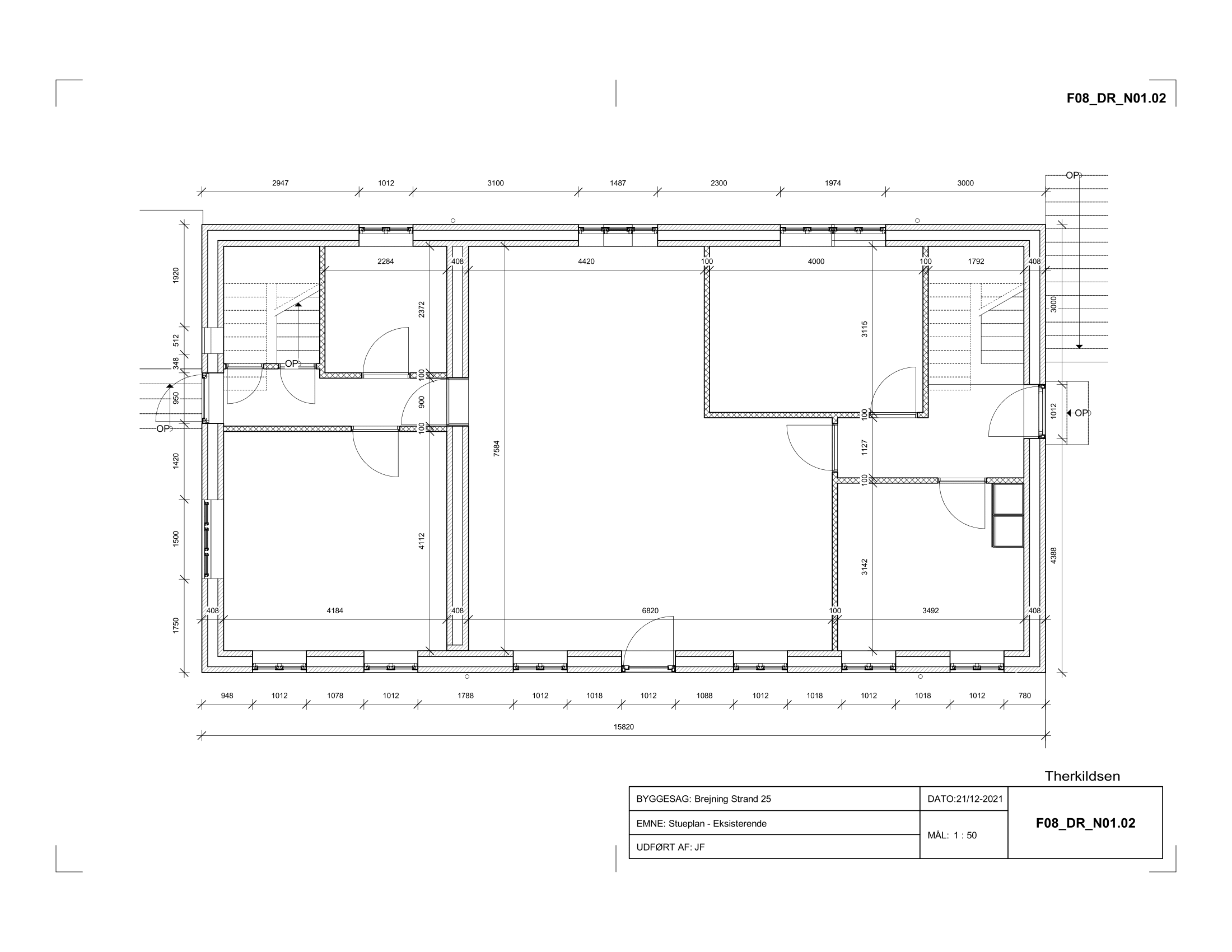
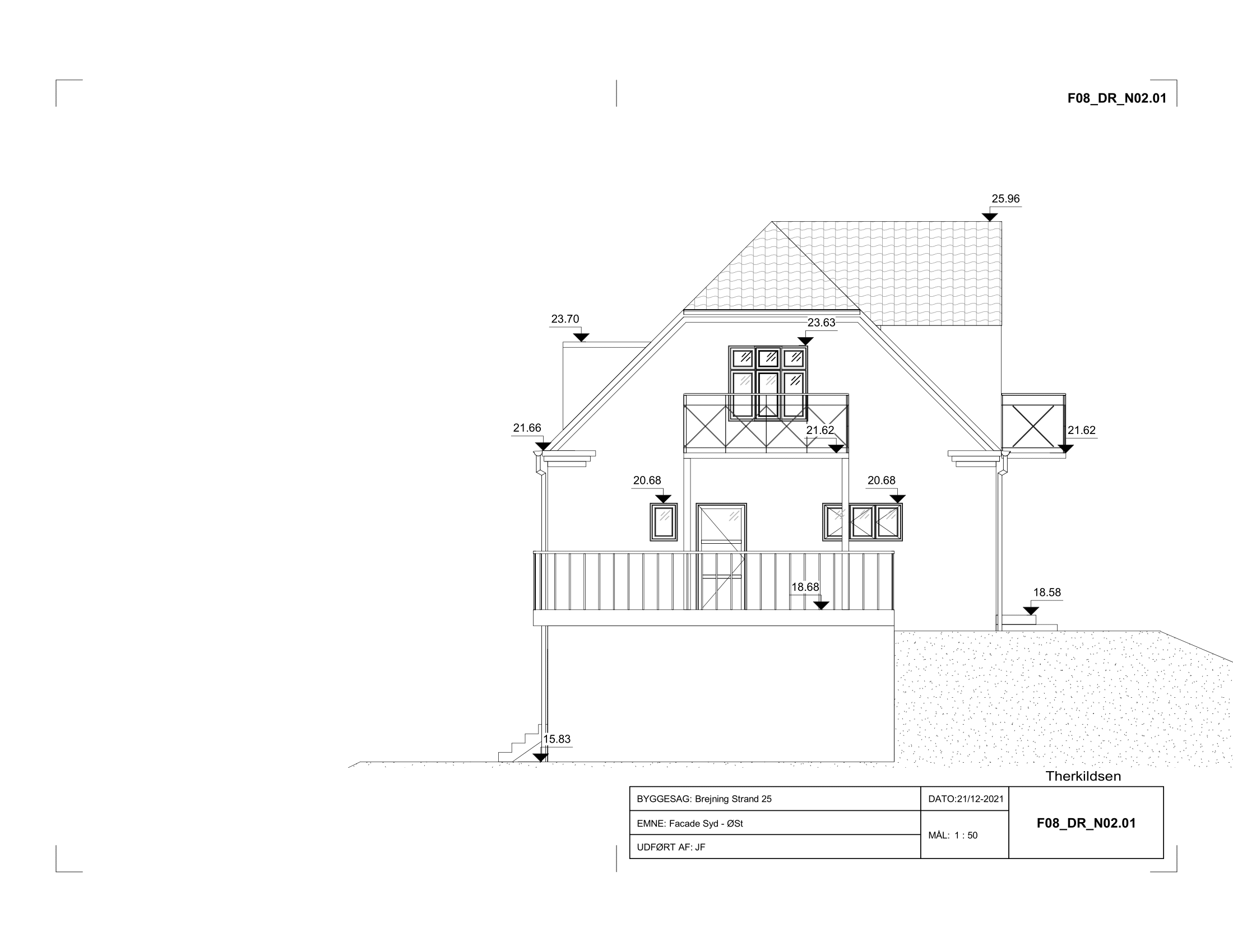
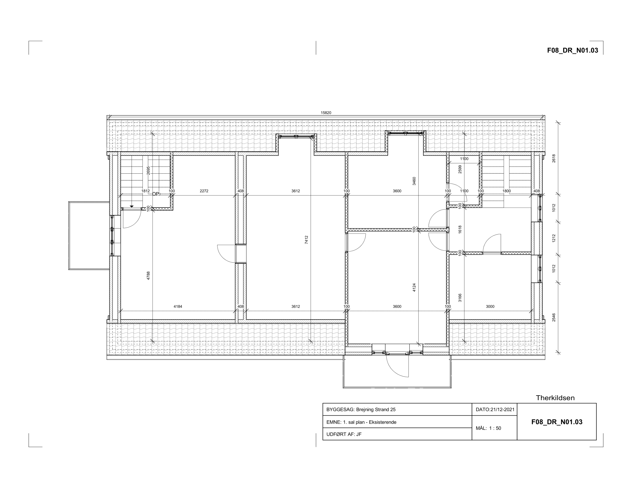
Totalrenovering af liebhaverejendom på ca. 330m2 samt opførelse af tilhørende parkeringshus.
Rådgivning og projektering af bærende konstruktioner







