Tidligere projekter

Du vil herunder kunne læse om nogle af de tidligere projekter, hvor vi har været involveret.

Se, hvordan vores løsninger skaber værdi for vores kunder.

Vi har ydet ingeniørrådgivning ved projektering og udstykning af rækkehuse i Virring med et samlet boligareal på ca. 4.100 m².
Vi har ydet ingeniørrådgivning ved opførelsen af etageboliger på Thrigesvej i Herning med et samlet boligareal på 510 m².
Vi leverer ingeniørydelser til leverandører af konstruktionsstål til projekter som stålhaller, trapper, altaner og teknikhuse
Vi har ydet ingeniørrådgivning ved opførelsen af 28 almene boliger i Rådhusparken i Uldum – et bæredygtigt byggeri på 2.710 m² i træ.
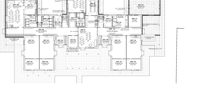
I samarbejde med Herning Kommune har vi ydet ingeniørrådgivning ved om- og tilbygningen af Børnehaven Solstrålen – 220 m² nybyggeri og 710 m² ombygning.
Vi har ydet ingeniørrådgivning på opførelsen af etageboliger på Olufsgade i Herning – 1.850 m² fordelt på tre etager.
Vi har ydet ingeniørrådgivning til udvidelsen af Møldrup Hallen på 1.150 m² med ny hal, sognesal, omklædningsrum og café.
Som en del af udvidelsen af VTI’s fabrik har vi ydet ingeniørrådgivning på opførelsen af en ny administrationsbygning på 580 m².
Connect Consult har ydet ingeniørrådgivning til Sweet Kitchens nye domicil i Hornslet – et byggeri på ca. 1.290 m² med lager, produktion og administration.
Connect Consult har leveret ingeniørrådgivning til opførelsen af Lund & Refsgaards nye domicil i Holstebro – et byggeri på 2.740 m² med lager og administration.
Connect Consult har været rådgivende ingeniører på Koustrup Have i Lind – et moderne boligbyggeri på ca. 6.400 m² opført i tre etaper.
Totalrenovering af liebhaverejendom på ca. 330m2 samt opførelse af tilhørende parkeringshus.
Connect Consult har bidraget til udviklingen af Blomsterparken – et moderne boligbyggeri med 24 seniorboliger og fælleshus, hvor bæredygtighed, funktionalitet og æstetik går hånd i hånd.
Connect Consult har bidraget til etableringen af det nye aktivitetscenter i WOW PARK Søndervig – en moderne, helårsåben indendørsfacilitet.