Sted: Sletten, Holstebro Kommune
Bygherre: Lund og Refsgaard
Areal: ca. 2740 m²
Færdiggørelse: [2025]
Rådgivende ingeniør: [Connect Consult]
Arkitekt: [Harritslev Arkitekter]
Entrepriseform: [fagentreprise]
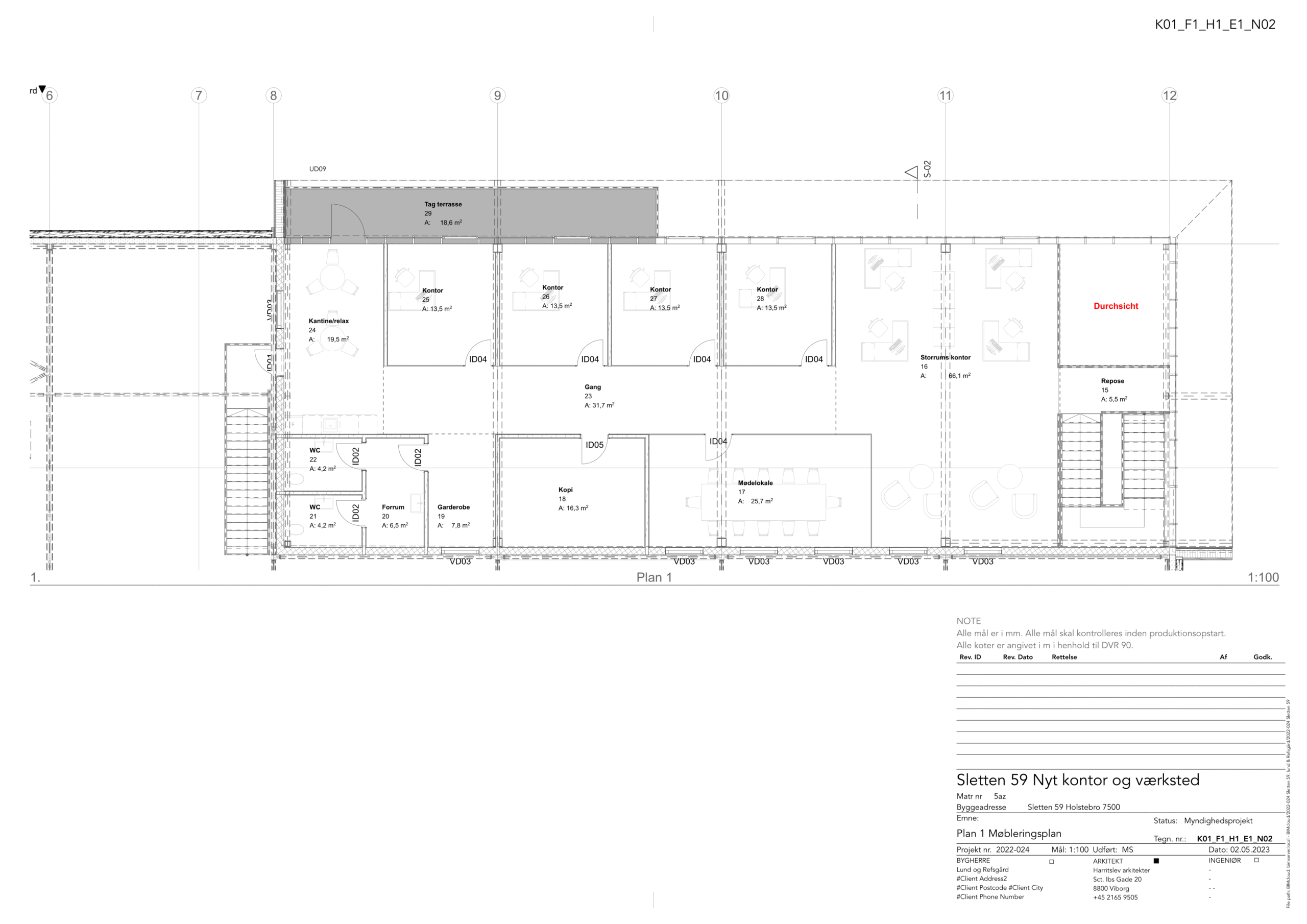
Nyt domicil og lager for Lund & Refsgaard, Holstebro
For tømrerfirmaet Lund & Refsgaard har vi leveret rådgivningsydelser i forbindelse med opførelsen af deres nye domicil i Holstebro – et samlet byggeri på 2.740 m² bestående af lagerfaciliteter og tilhørende administrationsafsnit.
Som rådgivende ingeniører har vi haft ansvar for projektering af de bærende konstruktioner, brandrådgivning samt ledninger i jord. Arbejdet er udført med fokus på at skabe en robust, driftsikker og fremtidssikret bygning, der understøtter virksomhedens daglige behov og vækstmuligheder.
Lagerhallen er opført med effektive konstruktionsløsninger, der sikrer fleksibel anvendelse og god logistik. Administrationsdelen er indrettet med fokus på funktionelle arbejdsmiljøer og sammenhæng med produktionen. I brandrådgivningen er der lagt vægt på enkle og effektive løsninger, som opfylder gældende lovkrav og samtidig giver stor brugervenlighed i hverdagen.
Projektet er gennemført i tæt samarbejde med bygherre og øvrige aktører, og vores tværfaglige ydelser har bidraget til en helhedsorienteret og velfungerende løsning







