Sted: Hornslet, Syddjurs Kommune
Bygherre: SweetKitchen
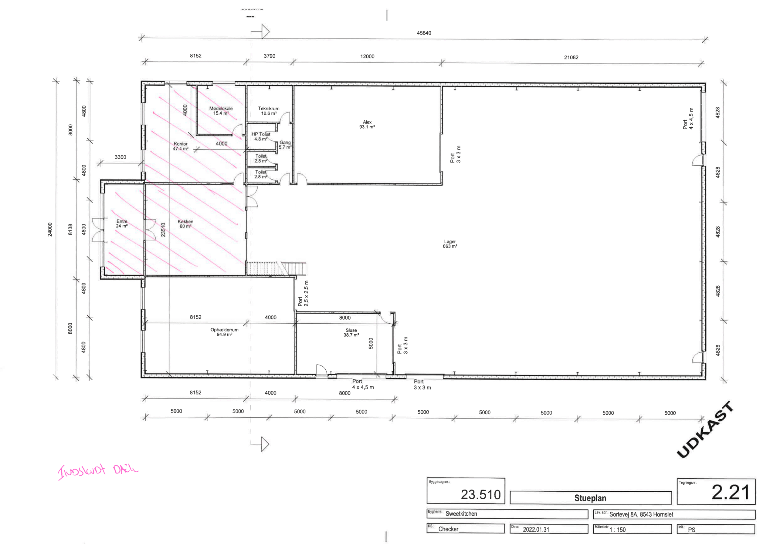
Areal: ca. 1290 m²og
Færdiggørelse: [2024]
Rådgivende ingeniør: [Connect Consult]
Arkitekt: [Michael Mortensen]
Entrepriseform: [Totalentreprise]
I Hornslet har Sweet Kitchen opført et nyt domicil på ca. 1.290 m², som rummer både lager- og produktionsfaciliteter samt en moderne administrationsbygning.
Som rådgivende ingeniører har vi ydet teknisk bistand inden for projektering af de bærende konstruktioner samt brandrådgivning og Energiberegning. Projektet er løst med fokus på funktionalitet, sikkerhed og fremtidssikring – og med hensyntagen til virksomhedens specifikke behov for produktionsflow, logistik og kontorarbejdspladser.
De bærende konstruktioner er projekteret med fokus på enkle, effektive og økonomiske løsninger, der giver fleksibilitet i indretning og brug. I vores brandrådgivning har vi haft fokus på at sikre en lovmedholdelig og praktisk anvendelig brandstrategi, som samtidig understøtter bygningens arkitektur og funktioner.




