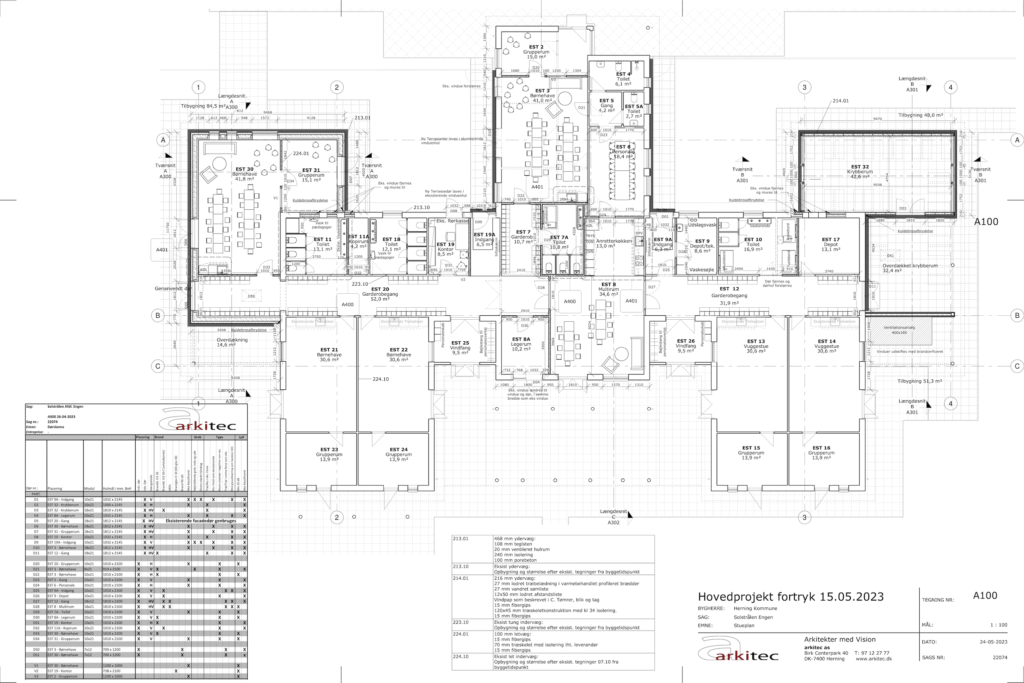
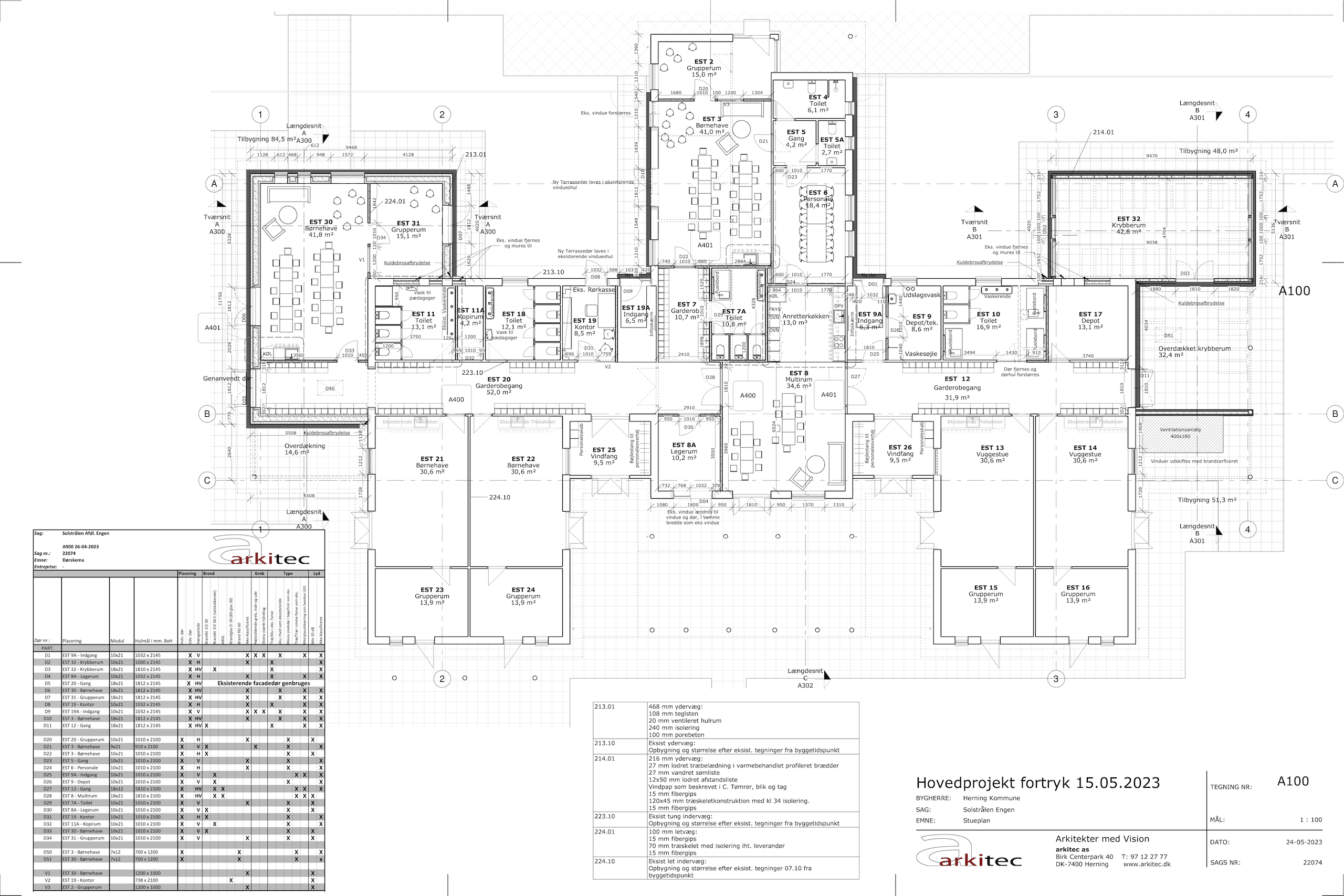
I samarbejde med Herning Kommune har vi ydet ingeniørrådgivning i forbindelse med om- og tilbygning af Børnehaven Solstrålen. Projektet omfatter 220 m² ny tilbygning samt ombygning af 710 m² eksisterende arealer.
Tilbygningen rummer nye grupperum samt kryberum, der styrker institutionens kapacitet og understøtter et moderne pædagogisk miljø.
Vores ydelser har omfattet:
- KK2-projektering af de bærende konstruktioner
- Projektering af de tekniske installationer:
- VVS
- Afløb
- Ventilation
- El
Projektet er gennemført med fokus på funktionalitet, indeklima og driftssikre løsninger tilpasset daginstitutionens behov.


