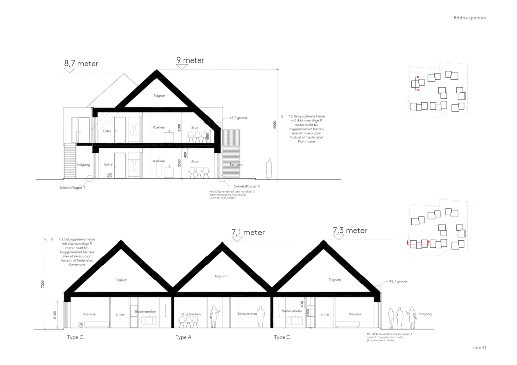
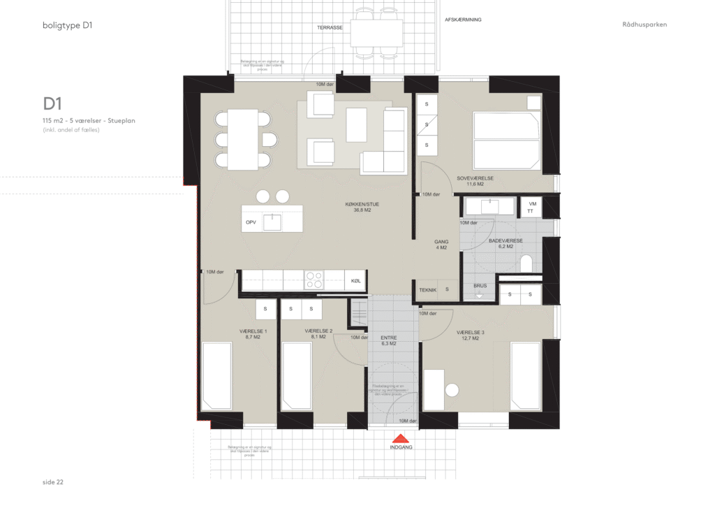
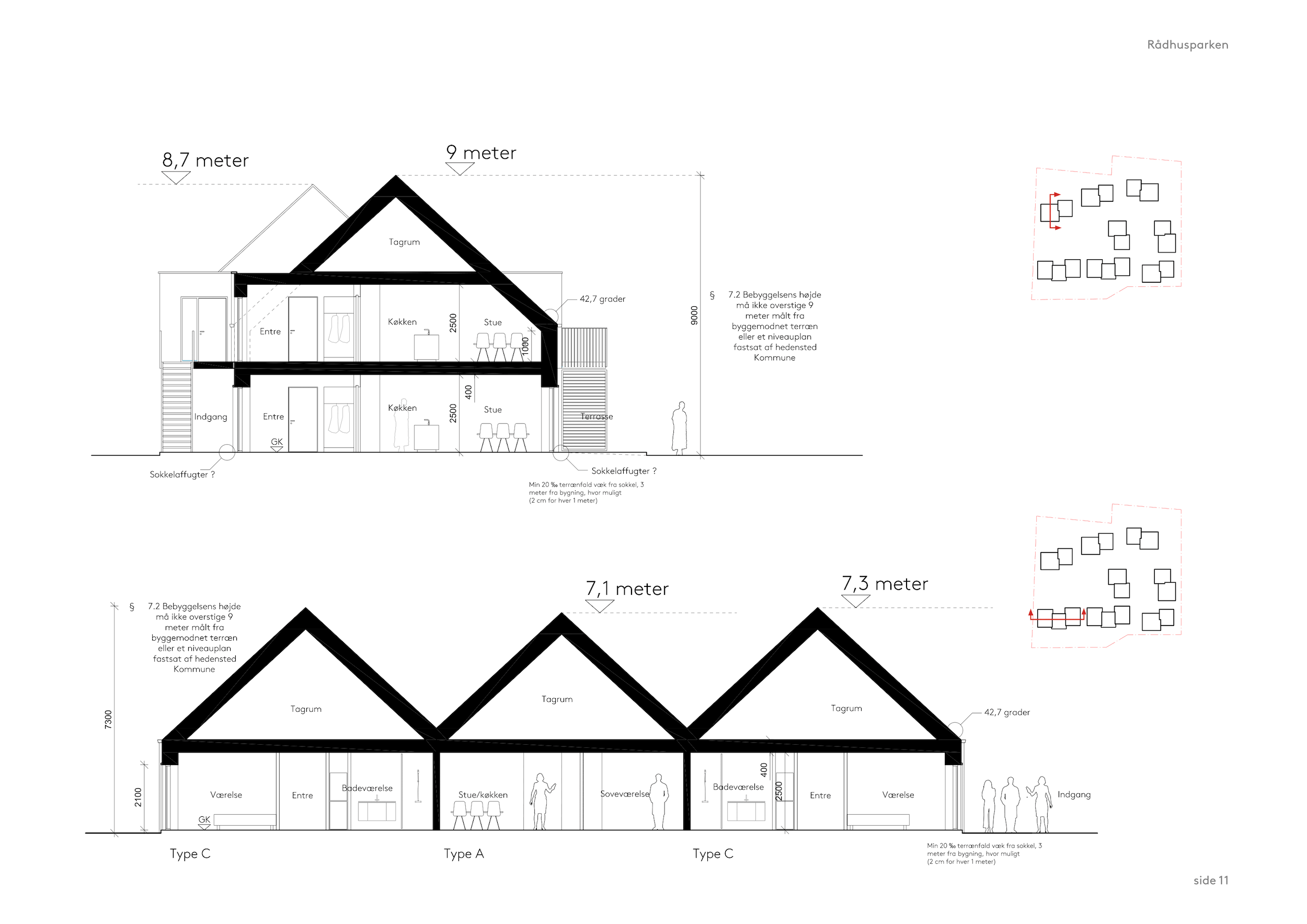
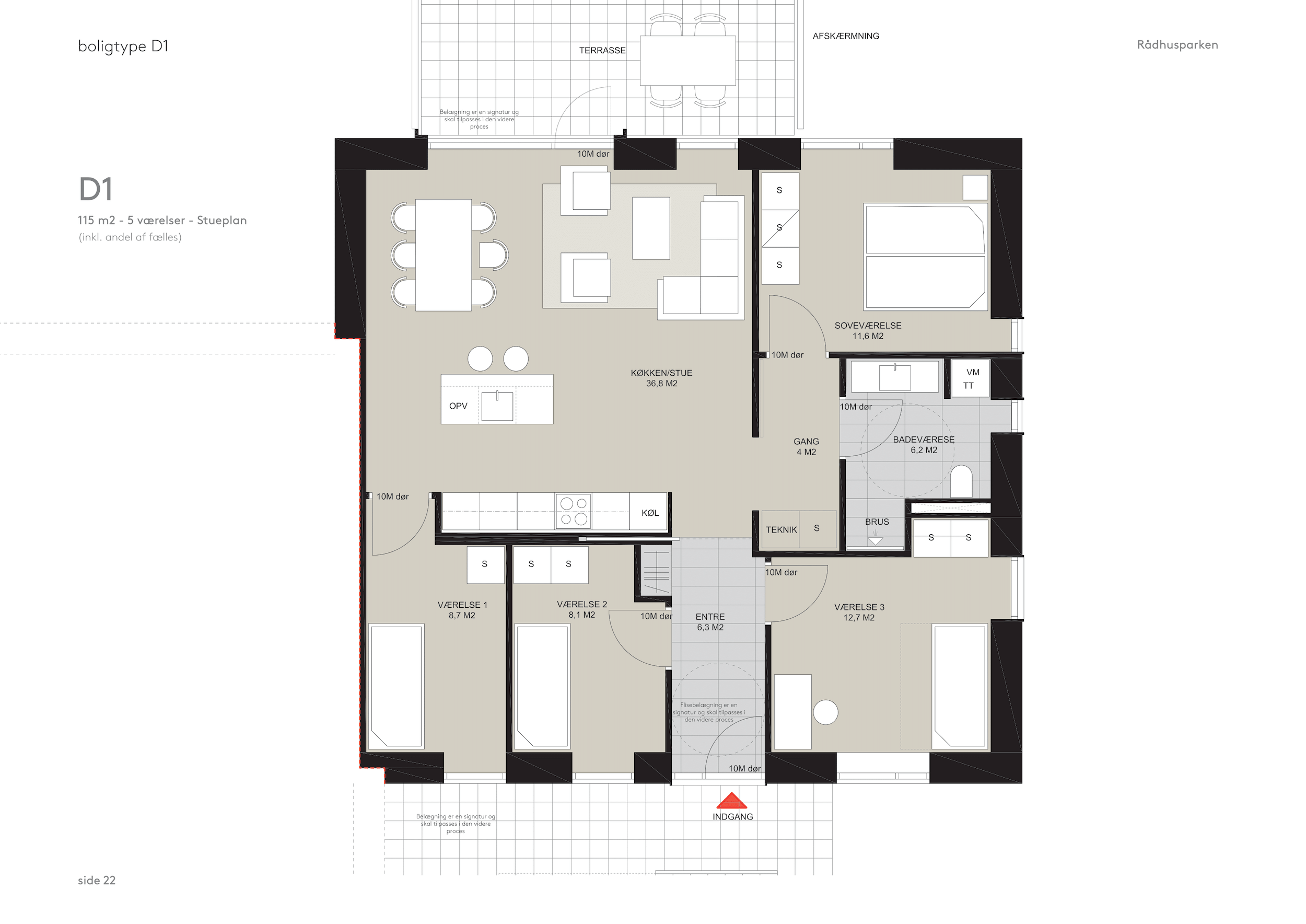
I Uldum har vi ydet ingeniørrådgivning i forbindelse med opførelsen af 28 nye almene boliger i Rådhusparken. Boligerne udføres i både én og to etager med vandret lejlighedsskel, og det samlede boligareal udgør 2.710 m².
Byggeriet er opført med bærende trækonstruktioner, hvilket bidrager til et bæredygtigt og effektivt byggeri med fokus på godt indeklima og lav miljøpåvirkning.
Vores ydelser har omfattet:
- KK2-projektering af bærende konstruktioner
- BK2-brandrådgivning
- Energiberegning iht. BE18
- Projektering af kloak og ledningsplaner
Projektet er udviklet med fokus på energieffektivitet, funktionalitet og fremtidssikrede løsninger til det almene boligmarked.


















